Ehemaliges Industriegebiet entwickelt sich zu grünem Wohnquartier am Wasser
Eisengießerei Hardinxveld-Giessendam
Die Eisengießerei in Hardinxveld-Giessendam, ein ehemaliger industrieller Produktionsstandort, verwandelt sich in ein offenes grünes Wohnquartier am Fluss Merwede. Wo mehr als ein Jahrhundert lang schwere umweltbelastende Arbeit stattfand, entsteht heute ein grünes städtisches Wohnquartier, das Dorf und Fluss wieder miteinander verbindet. Die Planung und der Entwurf von De Zwarte Hond greifen den großen Maßstab und die Ausstrahlung des industriellen Erbes auf und übertragen sie auf ein zeitgenössisches Wohnumfeld mit einer großen Vielfalt von Wohngebäudetypen. Wohnungen (83), Einfamilienhäuser (51) und kompakte Häuser für junge Leute (16) wurden sorgfältig in einer von Höhenunterschieden geprägten Landschaft platziert. Dadurch entstehen starke räumliche Beziehungen, überraschende Sichtachsen und eine Quartierstruktur. Das Torgebäude markiert vom Dorf aus gesehen den Quartierseingang und die Waterfront-Wohnungen bilden am Fluss eine neue Silhouette. Die Architektur überträgt den industriellen Charakter in eine zeitgemäße Wohnumgebung. Ziegel mit reichen, natürlichen Farbnuancen bilden die Grundlage des Quartiers und sorgen für Zusammenhalt. Die tragenden Elemente der Planung sind Grün und Wasser. Durch eine Gestaltung im Einklang mit der Natur, den Erhalt von Bestandsbäumen und ein engmaschiges Netz aus Gärten, Plätzen und grünen Straßen werden Deich, Quartier und die dahinterliegende Landschaft miteinander verbunden. Der öffentliche Raum ist verkehrsberuhigt und als Shared Space mit Begegnungsorten und Aufenthaltsbereichen gestaltet. Die Straßen führen bis zu einer öffentlichen Plattform am Fluss, wo Wohnen, Erholung und Landschaft aufeinandertreffen. So entsteht ein schönes Wohnviertel hinter dem Deich, in dem industrielle Vergangenheit, Landschaft und Alltagsleben wieder miteinander verbunden sind.
data
- Ort
- Hardinxveld-Giessendam, NL
- Umfang
- 40.000 m²
- Auftraggeber
- Gebroeders Blokland
- Disziplin
- Architektur
- Programm
- Wohnen
- Periode
- 2016-2026
- Status
- Abgeschlossen
- Fotografie
- Scagliola Brakkee
- Partner
- Jecon, Megaduct, Mobius
- Themen
Kontext, Industriewasser
Die Eisengießerei steht für eine lange Industriegeschichte. Die Gießerei war von 1897 bis 1986 in Betrieb und in diesem Zeitraum Teil eines Netzwerks von niederländischen Eisengießereien, die für die wirtschaftliche Entwicklung von am Wasser gelegenen Dörfern und Städten prägend waren. Wie bei vielen anderen Orten an niederländischen Flüssen wurde die industrielle Nutzung letztlich aufgegeben. Der Standort blieb als in Vergessenheit geratene Zone zwischen Dorf und Fluss bestehen. Und genau diese Lage ist eine wesentlicher Stärke des Gebiets. Die Eisengießerei verbindet Hardinxveld-Giessendam mit seiner industriellen Vergangenheit und mit der Merwede. Die Umgestaltung bewirkt eine Neubewertung des Ortes und den Aufbau einer neuen Beziehung zum Fluss.
Eine Wohnlandschaft auf verschiedenen Ebenen
Grundlage für die Planung des Wohnquartiers sind dessen Wahrnehmung, Höhenunterschiede und Sichtachsen. Vom Deich aus gesehen markiert ein Torgebäude den Eingang zum Quartier. Straßen verlaufen quer zum Deich und erreichen nach und nach die tiefer liegenden Bereiche des Geländes. So entsteht ein abwechslungsreiches kohärentes Straßenbild.
Am Deich stehen drei markante mehrstöckige Wohngebäude, die auf den Maßstab und die Größe der ehemaligen Industriebauten und der nahe gelegenen Trockendocks verweisen. Die Mitte des Quartiers bilden Einfamilienhäuser, die eine Ebene tiefer liegen, eingebettet in ein grünes Wohnumfeld. Der öffentliche Raum ist als Shared Space konzipiert, in dem sich Auto-, Rad- und Fußverkehr denselben Raum teilen. Die Straßen haben keine traditionellen Geh- oder Radwege und sind in Klinkerpflaster ausgeführt, wodurch sie stärker als Aufenthaltsbereiche wahrgenommen werden.
Damit das Straßenbild grün und ruhig bleibt, wurden Autostellplätze zum größten Teil außer Sichtweite untergebracht. Unter den Wohngebäuden am Deich befindet sich eine Tiefgarage und es wurden ergänzend Stellplätze in Grünbereichen entlang der Straßen eingefügt. So bleibt das Quartier autogerecht, ohne dass Autos das Bild bestimmen.
Die Straßen werden bis zu einer öffentlichen Plattform am Fluss weitergeführt. Dieser Platz ist ein wichtiger Begegnungsort mit Ausblick auf die Merwede und den Nationalpark De Biesbosch. Die Plattform wird mit breiten Einfassungen mit Sitzmöglichkeiten und großen Pflanzbereichen für Bewohnerschaft und Gäste einladend gestaltet.
Im Sockelbereich des mittleren Wohngebäudes ist Raum für eine öffentliche Nutzung im Bereich Gastronomie oder Sport reserviert, um das Flussufer auch im Alltag als lebendigen Teil des Quartiers nutzbar zu machen.
Zeitgenössische robuste Backsteinhäuser
Wohnen – sozial und vielfältig
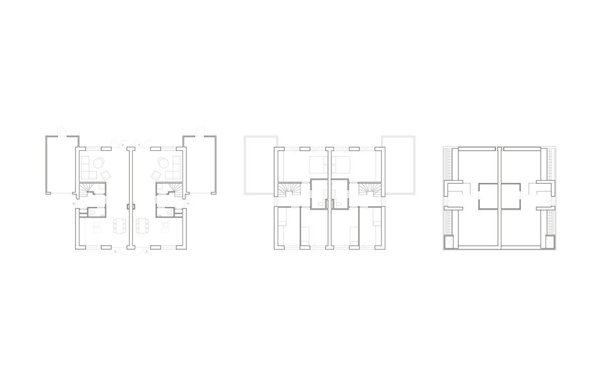
Die Eisengießerei bietet eine breite Palette an Wohngebäudetypen: von kompakten Wohnungen (83) über geräumige Einfamilienhäuser, Doppelhäuser und frei stehende Häuser, (51) bis hin zu kompakten Häusern für junge Leute (16). Die Vielfalt der Typologien leistet einen Beitrag zur Entstehung einer lebendigen gemischten Nachbarschaft.
Besonderes Augenmerk wurde auf die Übergänge zwischen privaten und öffentlichen Bereichen gelegt. Vorgärten sind mit Hecken, Veranden und Pergolen halböffentlich gestaltet, um Begegnungsmöglichkeiten zu schaffen. Dank der Ausrichtung der Häuser können die Gärten vor und hinter den Häusern aktiv genutzt werden. Die Küchen und Esszimmer liegen auf der Straßenseite und die Wohnzimmer öffnen sich zum Garten. Damit unterstützt die Architektur das Alltagsleben und informelle Kontakte zwischen den Bewohnerinnen und Bewohnern.
Ein neuer Ort zum Wohnen an der Merwede mit viel Platz, Ruhe und einem besonderen Charakter
Architektur, Material und Landschaft
Die Architektur überträgt den Industriecharakter auf ein zeitgenössisches Wohnumfeld. Ein nuancenreicher Ziegelstein mit vielfältigen natürlichen Farbtönen ist die Grundlage für die Gestaltung des Quartiers und unterstreicht die Zusammengehörigkeit. Beim Mauerwerk entsteht Vielfalt dank handwerklichem Können durch Läufer- und Binderverbände im Wechsel, die auf industrielle Bautraditionen verweisen.
Schlanke Fensterrahmen mit schmalen Profilen rahmen große Glasflächen ein und verstärken die robuste Ausstrahlung der Gebäude, die in modernen Materialien mit guten Dämmwerten ausgeführt sind. Das Grün ist das Pendant zur Architektur. Das Quartier wurde nach den Prinzipien des naturfreundlichen Bauens mit Erhalt von Bestandsbäumen, einer abwechslungsreichen Bepflanzung und Augenmerk auf Biodiversität und Anpassung an den Klimawandel entworfen. Regenwasser wird vor Ort aufgefangen und verzögert abgeleitet. So entsteht ein zukunftssicheres Wohnumfeld mit einem Gleichgewicht zwischen Natur, Wasser und Wohnen.
1. Westblok, 2. Doppelhaus, 3. Torgebäude



