Wie verbindet man Bildung und Wirtschaft?
Gilde Vakcollege
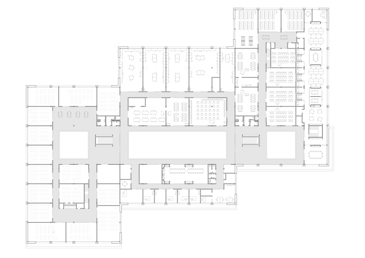
Das Gilde Vakcollege Techniek ist die größte vmbo-Technikschule in den Niederlanden. Einzigartig am Gilde ist der Fokus auf ein breites Spektrum technischer Profile und die direkte Verbindung zur Wirtschaft über WeTech. Das Design schafft eine intime, technische Arbeitsumgebung, in der Jugendliche ihren ersten Schritt Richtung Erwachsensein machen können. Die Praxisräume im Erdgeschoss sind als realistische Werkstätten eingerichtet und grenzen über transparente, zu öffnende Fassaden direkt an den Außenbereich an. Dies macht die praktische Ausbildung sichtbar und zugänglich. Im Obergeschoss befinden sich die Büros und Theorieräume, die eine ruhigere, geschlossene Lernumgebung bieten.
Durch die Organisation des Programms rund um eine zentrale Straße entsteht ein transparentes, freundliches und gesundes Gebäude. Drei Sheddächer über dieser Straße sorgen für reichlich Tageslicht und verweisen mit ihrem industriellen Charakter auf die technischen Arbeitsumgebungen, in denen die Schüler später ihren Beruf ausüben werden. Das Gebäude ist nicht nur ein Lernort, sondern auch ein Lernobjekt. Installationen und Konstruktionen wurden bewusst sichtbar gelassen, und Muster im Mauerwerk dienen als Inspiration für zukünftige Fachkräfte. Das Gebäude ist energieautark und dank natürlicher Materialien wie Holz gesund und einladend.
data
- Ort
- Gorinchem, NL
- Umfang
- 10.000 m²
- Auftraggeber
- Willem van Oranje Onderwijsgroep/ HEVO
- Disziplin
- Architektur
- Programm
- Bildung
- Periode
- 2020-2024
- Status
- Abgeschlossen
- Fotografie
- Eva Bloem
- Partner
- Burgland Bouw B.V. H4D constructie, Klictet installatieadviseur, Klimaatservice Holland B.V. DGMR Bouwfysica, Visker Interieurbouw en Keukens, BINK
- Awards (2)
-
- Archello Award 29025
Low-Carbon Building of the Year - Archello Award 2025
Secondary School Building of the Year
- Archello Award 29025
- Themen
Gorinchem
Gilde Vakcollege
Erneuerung als Motor für Innovation
Das „Gilde Vakcollege Techniek“ ist die größte Schule für berufsbildenden Sekundarunterricht der Unter- und Mittelstufe (VMBO) mit technischer Ausrichtung. Einzigartig an dieser Schule sind der Fokus auf ein breites Spektrum an technischen Profilen und die direkte Verbindung zur Wirtschaft über die Stiftung WeTech. Der Neubau muss nicht nur das künftige technische Arbeitsumfeld widerspiegeln, sondern auch ein sicheres Lernumfeld sein, das Geborgenheit vermittelt. Auch die Stiftung CVO-AV wird ihren Sitz im neuen Gebäude haben.
Da das Bestandsgebäude stark veraltet ist, zieht die Schule an den Standort De Hoefslag/Haarweg um. Der Umzug bietet die einmalige Gelegenheit, den Neubau auch als Katalysator für die Entwicklung des neuen Innovationscampus in Gorinchem-Noord zu nutzen.
Drei zueinander verschobene Baukörper
Erneuerung als Antrieb für Innovation
Der Entwurf für die berufsbildende Schule Het Gilde Vakcollege Techniek ist das fehlende Bindeglied auf dem neuen Campus. Dank der Unterteilung in drei zueinander verschobene Baukörper erhält das Gebäude einen menschlichen Maßstab und fügt sich in die bestehende Campusstruktur ein. Da Technik unseres Erachtens sichtbar sein darf, liegen alle Räume für den praktischen Unterricht im Erdgeschoss. Die Praxis-Cluster verfügen an der Nord- und Südseite über große Türen sowie viel Glas zur zentralen Eingangshalle hin, die alle Cluster im Gebäude verbindet. Auch im Mauerwerk wird handwerkliches Können sichtbar.
- Mauerwerk-Fertigteile: Riemchen auf Unterkonstruktion
- Holzdecke: mit Öffnungen für Zu- und Abluftvorrichtungen in Räumen für praktischen Unterricht und verdeckten Notüberlauf
- Akustikdecke: zementgebundene Holzwolleplatten
- Mauerwerk: mit violetten Nuancen, ausgeführt in wildem Verband
- Veranda: Betonplatten 50×50 cm mit festem Sockel als Sitzelement
Lernen vom Gebäude selbst
Das Gebäude ist nicht nur ein Ort des Lernens, sondern auch ein Lernobjekt an sich. Installationen und Konstruktionselemente wurden bewusst sichtbar gelassen, damit die Nutzer sehen können, wie das Gebäude funktioniert. Muster im Mauerwerk regen die Vorstellungskraft an und dienen als Inspiration für die Handwerkerinnen und Handwerker der Zukunft. Der Einsatz natürlicher Materialien wie Holz lässt das Gebäude gesund, warm und einladend wirken.
Drei markante Sheddächer versorgen die Innenstraße und Unterrichtsräume mit Tageslicht und sind mit PV-Modulen bedeckt, wodurch das Gebäude energieautark betrieben werden kann. Der industrielle Charakter der Dächer verweist auf die technischen Arbeitsumgebungen, in denen die Schüler später ihren Beruf ausüben werden.








